AMT
  • Direct onbeperkt lezen
  • Inloggen
  • Diagnose
    • Diagnosetools
    • Diagnosetips
    • Pass-thru
    • State of Health
  • APK
    • Regelgeving
    • APK-tools
  • Techniek
    • Hybride & EV
    • Waterstof
    • Motor & Transmissie
  • Werkplaats
    • Werkplaatsinrichting
    • Tools & Equipment
  • AMT TV
  • Garageforum
  • Reparatiewijzer
Feedback?
Terug naar overzicht

Airco word niet aangestuurd/ Locatie relais

11 reacties

Merk
Volvo
Model
V60
Type
2.0 D3 Kinetic
Onderwerp
Kachel / Ventilatie
Motorcode
D5204T3, 1984 CC (5 cil)
Eerste inschrijving
juni 2011
Brandstof
Diesel

Rdewit123

Lid sinds: 13-06-2019

Bijdragen: 8

Geplaatst: 17-08-2020 16:42

Goeiedag,

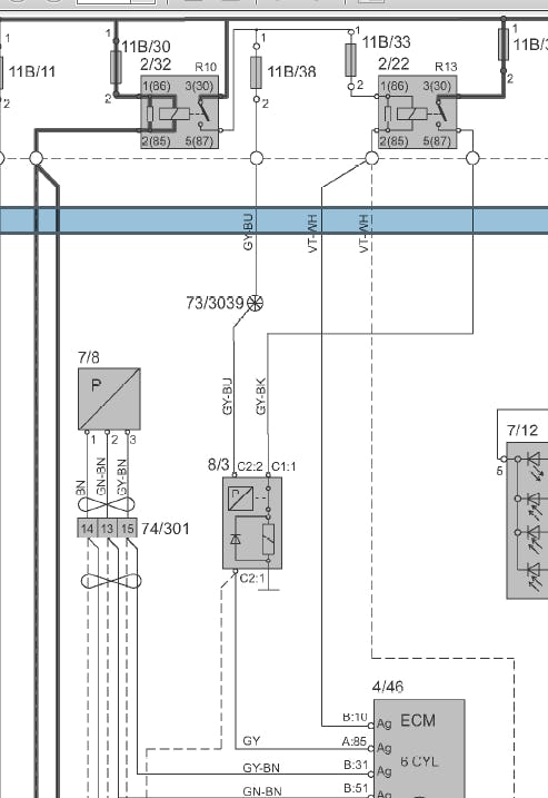
Goeiemiddag ik ben bezig met een Volvo v60 uit 2011.De airco slaat niet aan wanneer deze aangezet wordt. Het systeem is afgevuld en er zijn geen foutcodes aanwezig.Ik heb een schema waarmee heb kunnen meten. In dit schema is te zien dat er 3 aansluitingen zijn, waarvan 1 plus van het relais 2/22 zwak is (2V). Dit relais hoort in de motorruimte te zitten net boven het luchtfilter in de zekeringenkast. Deze is hier niet aanwezig ook missen de zekeringen. Ik kan deze zekeringen en het relais nergens vinden. Heeft iemand enig idee waar deze kunnen zitten?

Bijlagen

  • 🌅vC66vf3t-713696-schema-v60.png
  • 🌅oYOpkI2B-713696-v60.jpg
  • 🌅D6Jrmf70-713696-v602.jpg
  • Nieuwsbrieven
  • Over AMT
  • Klantenservice
  • Contact
  • Adverteren

Thema's

  • Diagnose
  • APK
  • Techniek
  • Werkplaats
  • Airco

Snel naar

  • Garageforum
  • Reparatiewijzer
  • Digitaal magazine

Volg AMT

  • Facebook
  • LinkedIn
  • Instagram

AMT is onderdeel van VMN media. Lees in ons manifest waar VMN media voor staat. Op gebruik van deze site zijn de volgende regelingen van toepassing: Algemene Voorwaarden en Privacy en Cookie beleid | Privacy instellingen