Terug naar overzicht

Aircodruksensor p0530

9 reacties

Merk
Renault
Model
Scénic
Type
2.0-16V Tech Line 7p.
Kenteken
91-TP-NZ
Chassisnr.
Onderwerp
Airconditioning, Diagnose apparatuur, Elektronica, Foutcodes
Motorcode
F4R
Eerste inschrijving
januari 2007
Brandstof
Benzine

DylanWals

Lid sinds: 24-10-2025

Bijdragen: 42

Geplaatst: 20-06-2014 12:17

Renault Secenic 2006 heeft een airco(climate Control) probleem. De pomp niet slaat niet aan. Bosch testkast geeft foutcode p0530 aan (verkeerde spanning druksensor). Foutcode kan niet worden gewist.

Druksensor is al vervangen en aircosysteem is afgevult. De aircopomp kan wel via een actuator test aangestuurd worden. meetwaarde druksensor 0bar.

Heb de draden gecontroleerd op onderbreking en spanning zie meetwaardes. Als je een volt meting doet op de beige draad(signaaldraad) gaat de aircopomp wel aan.

Bij dealer geweest en kon foutcode ook niet wissen.

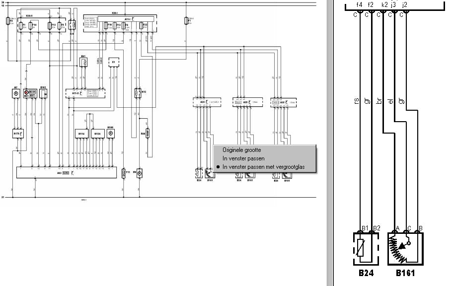
Schema Autodata 3.38 en orgineel dealer gebruikt

regel=br 

sigiaal=el

plus=gr

Als iemand weet hoe ik het systeem werkend krijg hoor ik het graag ;)

Gemeten

Gemeten op de stekker druksensor motor aan stekker er af

Grijs + 4,3V

Beige Singiaal 3,6v

Groen regel 0v

gemeten motor aan stekker er op

Grijs 5.2V

Beige 4,8V

groen 4,7V

gemeten tussen stekker druksensor en motorregelapparaat

grijs en J2 0,2 Ohm

beige en j3 0,2 Ohm

groen en k2 0.2 Ohm

Airco druk 5bar vulling 550gram

Uitgelezen met

Bosch KTS

Foutcodes

P0530